ANDAMENTO PREZZI a CECINA FOTOGALLERY Marina di Cecina I miei consigli sulle lacune nell'iter che porta al rogito notarile COEFFICIENTI rendita catastale
|
||||||||||||||||||||||||||
|
MONOLOCALI al mare
SPESE CONTRATTUALI Si invita chiunque a desistere nel copiare qualsiasi minimo materiale contenuto in questo sito, a norma di legge. |
||||||||||||||||||||||||||
| n. chiave | planimetria | foto e descrizione |
vedi altre
foto
|
N. vani |
APE IPE kwh/m2a | Categoria | A + C | data inseri mento | esclu siva | entrata | appart | mq. | dist mare metri |
anno costr o ristr |
piano | arreda mento | termo | p.auto | si/no | ubica zione |
prezzo rialzo ribasso |
riferim | ||||
| Rendita | CATASTO | giardino | mq. | garage | si/no | |||||||||||||||||||||
| SPESE ATTO NOTARILE | ||||||||||||||||||||||||||
|
1a casa 2%
2a casa 9% |
Registro 2% e 9% +Notaio, +Tecnico (escluso agenzia) |
balconi | mq. | cantina ripost taverna | si/no | |||||||||||||||||||||
| IMU2acasa | IMU | |||||||||||||||||||||||||
|
chiave 262 |
![]() |
![]() |
vedi altre
foto |
piccolo vano al piano terra ad uso
MAGAZZINO mq 12 o GARAGE mq 13 |
G |
CATEGORIA | C2 | 20.10.25 | escl | ind | appart | mq.12 | dist mare 600 | 1975 | piano
terra |
/ | / | p.auto | / |
Cecina Mare |
21 | COPPOGL | ||||
| Rendita | giardino | mq.0 | garage | 13 | ||||||||||||||||||||||
| SPESE ATTO NOTARILE | balconi | mq.0 | cantina ripost taverna | / | ||||||||||||||||||||||
| 1a casa
2a casa |
||||||||||||||||||||||||||
| IMU2acasa | ||||||||||||||||||||||||||
|
chiave 259 |
![]() |
|
vedi altre
foto |
piccolo vano al piano terra con corte esclusiva 200mt mare |
G 175 |
CATEGORIA | C2 | 25.03.25 | escl | ind | appart | mq.20 | dist mare 200 | 2002 | piano
terra |
/ | / | p.auto | / |
Cecina Mare |
49 | BOCCACAB | ||||
| Rendita | 95,09 | giardino | mq.25 | garage | / | |||||||||||||||||||||
| SPESE ATTO NOTARILE | balconi | mq.0 | cantina ripost taverna | / | ||||||||||||||||||||||
| 1a casa
2a casa |
||||||||||||||||||||||||||
| IMU2acasa | ||||||||||||||||||||||||||
|
BILOCALI al mare RENT TO BUY SCEGLI IL MIGLIOR MUTUO MUTUI: decreto Bersani CATEGORIE CATASTALI FOTOGALLERY PREVENTIVO INSTALLAZIONE CONDIZIONATORI Si invita chiunque a desistere nel copiare qualsiasi minimo materiale contenuto in questo sito |
||||||||||||||||||||||||||
| n. chiave | planimetria | foto e descrizione |
vedi altre foto
|
N. vani | Classe APE IPE kwh/m2a | Categoria | A + C | data inseri mento | esclu siva | entrata | appart | mq. | dist mare metri |
anno costr o ristr |
piano | arreda mento | termo | p.auto | ubica zione |
prezzo rialzo ribasso |
riferim | |||||
| Rendita | CATASTO | giardino | mq. | garage | ||||||||||||||||||||||
| SPESE ATTO NOTARILE | ||||||||||||||||||||||||||
|
1a casa 2%
2a casa 9% |
Registro 2% e 9% +Notaio, +Tecnico (escluso agenzia) |
balconi | mq. | cantina ripost taverna | ||||||||||||||||||||||
| IMU2acasa | IMU | |||||||||||||||||||||||||
|
chiave 263 |
![]() |
|
vedi altre
foto |
BILOCALE con ampio terrazzo 450 mt dal mare vicino pineta pineta. posto auto |
G 175 |
CATEGORIA | A2 | 20.11.25 | escl |
ind in 2 |
appart | mq.40 | dist mare 450 | 1982 | piano
primo |
arred | ? | p.auto | si |
Cecina Mare |
165 tratt |
ENIGIULI | ||||
| Rendita | 395,09 | giardino | mq.0 | garage | / | |||||||||||||||||||||
| SPESE ATTO NOTARILE | balconi | mq.7 | cantina ripost taverna | / | ||||||||||||||||||||||
| 1a casa
2a casa |
2900 6600 |
|||||||||||||||||||||||||
| IMU2acasa | 703 | |||||||||||||||||||||||||
|
chiave 262 |
![]() |
|
vedi altre
foto |
BILOCALE con ampio terrazzo 150mt dal mare fronte pineta |
G 175 |
CATEGORIA | A2 | 14.11.25 | escl | ind | appart | mq.40 | dist mare 150 | 1982 | piano
primo |
arred | p.auto | si |
Cecina Mare |
prezzo da concordare | FRESFERR | |||||
| Rendita | 395,09 | giardino | mq.0 | garage | / | |||||||||||||||||||||
| SPESE ATTO NOTARILE | balconi | mq.7 | cantina ripost taverna | / | ||||||||||||||||||||||
| 1a casa
2a casa |
2900 6600 |
|||||||||||||||||||||||||
| IMU2acasa | 703 | |||||||||||||||||||||||||
|
chiave 261 |
![]() |
![]() |
vedi altre foto |
MONOBILO indip con terrazza pranzo a circa 300 mt dal mare dietro pineta posto 3 bici posto auto facile parcheggio |
G 175 |
CATEGORIA | A2 | 25.09.25 | escl | ind | appart | mq.30 | dist mare 300 | 1975 | piano
rialzato |
arredato | / | p.auto | / |
Cecina Mare |
In trattativa | ANTOMOCE | ||||
| Rendita | 329 | giardino | mq.5 | garage | / | |||||||||||||||||||||
| SPESE ATTO NOTARILE | balconi | mq.7 | cantina ripost taverna | / | ||||||||||||||||||||||
| 1a casa
2a casa |
2700 5500 |
|||||||||||||||||||||||||
| IMU2acasa | 586 | |||||||||||||||||||||||||
|
chiave 259 |
![]() |
|
vedi altre
foto |
piccolo vano al piano terra con corte esclusiva 200mt mare |
G 175 |
CATEGORIA | C2 | 25.03.25 | escl | ind | appart | mq.20 | dist mare 200 | 2002 | piano
terra |
/ | / | p.auto | / |
Cecina Mare |
49 | BOCCACAB | ||||
| Rendita | 95,09 | giardino | mq.25 | garage | / | |||||||||||||||||||||
| SPESE ATTO NOTARILE | balconi | mq.0 | cantina ripost taverna | si | ||||||||||||||||||||||
| 1a casa
2a casa |
||||||||||||||||||||||||||
| IMU2acasa | ||||||||||||||||||||||||||
|
chiave 256 |
|
|
vedi altre
foto |
CASINA categoria C2 con corte esclusiva 200mt mare |
G 175 |
CATEGORIA | C2 | 25.03.25 | escl | ind | appart | mq.20 | dist mare 200 | 2002 | piano
terra |
/ | / | p.auto | / |
Cecina Mare |
in trattativa | BOCCACAB | ||||
| Rendita | 95,09 | giardino | mq.25 | garage | / | |||||||||||||||||||||
| SPESE ATTO NOTARILE | balconi | mq.0 | cantina ripost taverna | / | ||||||||||||||||||||||
| 1a casa
2a casa |
||||||||||||||||||||||||||
| IMU2acasa | ||||||||||||||||||||||||||
|
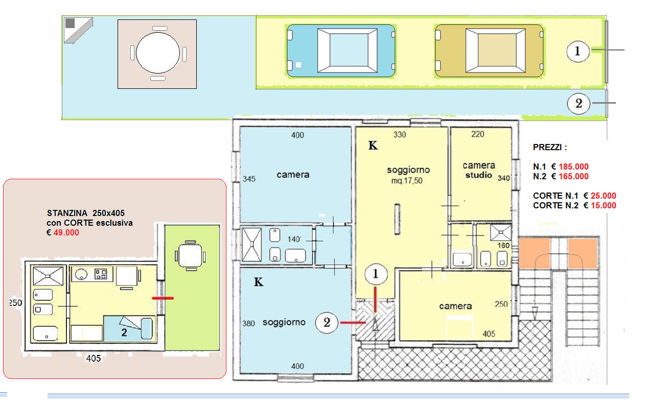
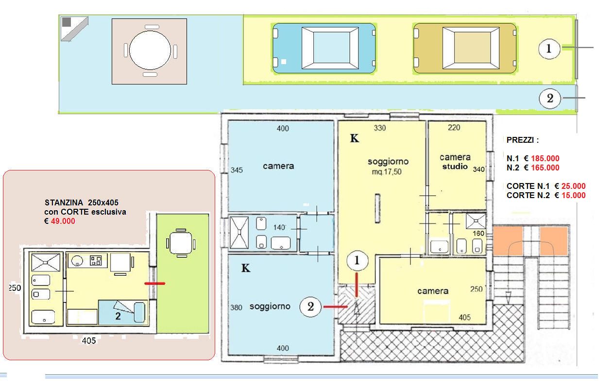
chiave 258 |
![]() |
![]() |
vedi altre
foto |
un BILOCALE ed un TRILOCALE da ristrutturare al piano primo di palazzina con corte e posto auto 200mt mare |
G 175 |
CATEGORIA | A2 | 25.03.25 | escl | ind | appart | mq.40 | dist mare 200 | 1982 | piano
primo |
/ | / | p.auto | si |
Cecina Mare |
165+ 35 stanzina |
BOCCACAB | ||||
| Rendita | 395,09 | giardino | mq.20 | garage | / | |||||||||||||||||||||
| SPESE ATTO NOTARILE | balconi | mq.5 | cantina ripost taverna | / | ||||||||||||||||||||||
| 1a casa
2a casa |
2900 6600 |
|||||||||||||||||||||||||
| IMU2acasa | 703 | |||||||||||||||||||||||||
|
chiave 250 |
![]() |
![]() |
vedi altre
foto |
BILOCALE C6 con bagno e doppia corte esclusiva a 1200 mt dal mare |
G
|
CATEGORIA | C6 | 25.01.25 | escl | ind | appart | mq.30 | dist mare 1150 | 2000 | piano
terra |
arred | clima | p.auto | / |
Cecina Mare |
119 | MORIMP | ||||
| Rendita | 94,20 | giardino | mq.20 | garage | / | |||||||||||||||||||||
| SPESE ATTO NOTARILE | terrazza | mq.30 | cantina ripost taverna | / | ||||||||||||||||||||||
| 1a casa
2a casa |
||||||||||||||||||||||||||
| IMU2acasa | 168 | |||||||||||||||||||||||||
|
chiave 248 |
![]() |
|
vedi altre
foto |
BILOCALE con balcone e corte a comune a 450mt mare p. auto esclusivo |
G 175 |
CATEGORIA | A2 | 11.01.25 | escl | cond. | appart | mq.40 | dist mare 400 | 1982 | piano
secondo |
arred | clima | p.auto | si |
Cecina Mare |
In trettativa | FRESFERR | ||||
| Rendita | 395,09 | giardino | mq.0 | garage | / | |||||||||||||||||||||
| SPESE ATTO NOTARILE | balconi | mq.5 | cantina ripost taverna | / | ||||||||||||||||||||||
| 1a casa
2a casa |
2900 6600 |
|||||||||||||||||||||||||
| IMU2acasa | 703 | |||||||||||||||||||||||||
|
TRILOCALI
al mare RENT TO BUY SCEGLI IL MIGLIOR MUTUO MUTUI: decreto Bersani CATEGORIE CATASTALI FOTOGALLERY PREVENTIVO INSTALLAZIONE CONDIZIONATORI Si invita chiunque a desistere nel copiare qualsiasi minimo materiale contenuto in questo sito, a norma di legge. |
||||||||||||||||||||||||||
| n. chiave | planimetria |
foto e
descrizione |
vedi altre foto
|
descrizione e N. vani |
Classe APE IPE kwh/m2a |
Categoria | A + C | data inseri mento | esclu siva | entrata | appart | mq. | dist mare metri |
anno costr o ristr |
piano | arreda mento | termo | p.auto | ubica zione |
prezzo rialzo ribasso |
riferim | |||||
| Rendita | CATASTO | giardino | mq. | garage | ||||||||||||||||||||||
| SPESE ATTO NOTARILE | ||||||||||||||||||||||||||
|
1a casa 2%
2a casa 9% |
Tassa Registro 2% e 9% +Notaio, +Tecnico (escluso agenzia) |
balconi |
mq. | cantina ripost taverna | mq. | |||||||||||||||||||||
| IMU2acasa | IMU | |||||||||||||||||||||||||
|
chiave 270 |
![]() |
|
vedi altre
foto |
TRLOCALE piano primo ed ultimo terrazzo e ripostiglio biciclette sottoscala |
G |
CATEGORIA | A2 | 11.11.25 | escl | 2 | appart | mq.70 | dist mare 250 | 1980 | piano
primo ed ultimo |
arred | / | p.auto | / |
Cecina Mare |
235 |
MICHELCAB | ||||
| Rendita | 511,29 | giardino | 0 | garage | / | |||||||||||||||||||||
| SPESE ATTO NOTARILE | balconi | 5 | cantina ripost taverna | si | ||||||||||||||||||||||
| 1a casa
2a casa |
3100 8000 |
|||||||||||||||||||||||||
| IMU2acasa | 910 | |||||||||||||||||||||||||
|
chiave 269 |
![]() |
![]() |
vedi altre
foto |
TRLOCALE piano primo ed ultimo terrazzo giardino taverna e posto auto |
G |
CATEGORIA | A2 | 11.11.25 | escl | 2 | appart | mq.60 | dist mare 250 | 1980 | piano
primo ed ultimo |
arred | / | p.auto | si |
Cecina Mare |
289 (189 trilo +109 tav) |
LAZZERCAB | ||||
| Rendita | 607,97 | giardino | 65 | garage | / | |||||||||||||||||||||
| SPESE ATTO NOTARILE | balconi | 5 | cantina ripost taverna |
25 mq |
||||||||||||||||||||||
| 1a casa
2a casa |
3100 8500 |
|||||||||||||||||||||||||
| IMU2acasa | 1082 | |||||||||||||||||||||||||
|
chiave 260 |
![]() |
![]() |
vedi altre
foto |
TRLOCALE piano secondo terrazzo e
posto auto IN BACHECA |
G |
CATEGORIA | A2 | 19.08.25 | escl | 9 | appart | mq.55 | dist mare 350 | 1980 | piano
secondo |
arred | / | p.auto | si |
Cecina Mare |
205 |
ZUCCHFERR | ||||
| Rendita | 546 | giardino | 0 | garage | / | |||||||||||||||||||||
| SPESE ATTO NOTARILE | balconi | 10 | cantina ripost taverna | / | ||||||||||||||||||||||
| 1a casa
2a casa |
3100 8000 |
|||||||||||||||||||||||||
| IMU2acasa | 972 | |||||||||||||||||||||||||
|
chiave 0 |
![]() |
|
vedi altre
foto |
TRLOCALE ind. con due garages posto auto e giardino |
G |
CATEGORIA | A2 | 14.08.25 | escl | ind | appart | mq.60 | dist mare 450 | 1975 | piano
primo |
arred | / | p.auto | si |
Cecina Mare |
VENDITA SOSPESA |
GHERBATT | ||||
| Rendita | giardino | 70 | garage | /si 2 | ||||||||||||||||||||||
| SPESE ATTO NOTARILE | balconi | 6 | cantina ripost taverna | / | ||||||||||||||||||||||
| 1a casa
2a casa |
||||||||||||||||||||||||||
| IMU2acasa | ||||||||||||||||||||||||||
|
chiave 0 |
![]() |
|
vedi altre
foto |
TRLOCALE ind. ben tenuto |
G 175 |
CATEGORIA | A2 | 03.08.25 | escl | ind | appart | mq.50 | dist mare 150 | 1975 | piano
primo |
arred | / | p.auto | / |
Cecina Mare |
179 |
BOSCGIN | ||||
| Rendita | giardino | / | garage | / | ||||||||||||||||||||||
| SPESE ATTO NOTARILE | balconi | / | cantina ripost taverna | / | ||||||||||||||||||||||
| 1a casa
2a casa |
||||||||||||||||||||||||||
| IMU2acasa | ||||||||||||||||||||||||||
|
chiave 0 |
![]() |
![]() |
vedi altre
foto |
TRLOCALE ind. ben tenuto con ampio giardino e garage |
G 175 |
CATEGORIA | A2 | 03.05.25 | escl | ind | appart | mq.60 | dist mare 300 | 1975 | piano
primo |
arred | termo | p.auto | si |
Cecina Mare |
VENDITA SOSPESA |
FRESGIUS | ||||
| Rendita | 490,63 | giardino | mq.50 | garage | si | |||||||||||||||||||||
| SPESE ATTO NOTARILE | balconi | mq.6 | cantina ripost taverna | si | ||||||||||||||||||||||
| 1a casa
2a casa |
3000 7500 |
|||||||||||||||||||||||||
| IMU2acasa | 872 | |||||||||||||||||||||||||
|
chiave 258 |
![]() |
![]() |
vedi altre
foto |
TRLOCALE al piano terra di palazzina con giardino esclusivo e posto auto 100mt mare |
G 175 |
CATEGORIA | A2 | 02.05.25 | escl | ind | appart | mq.60 | dist mare 100 | 1975 | piano
terra |
/ | / | p.auto | si |
Cecina Mare |
270 |
GABEBAT | ||||
| Rendita | 454,09 | giardino | mq.30 | garage | / | |||||||||||||||||||||
| SPESE ATTO NOTARILE | balconi | mq.5 | cantina ripost taverna | / | ||||||||||||||||||||||
| 1a casa
2a casa |
2900 7000 |
|||||||||||||||||||||||||
| IMU2acasa | 808 | |||||||||||||||||||||||||
|
chiave 257 |
![]() |
![]() |
vedi altre
foto |
un TRLOCALE ed un BIILOCALE da ristrutturare al piano primo di palazzina con corte esclusiva e posto auto 200mt mare |
G 175 |
CATEGORIA | A2 | 25.03.25 | escl | ind | appart | mq.40 | dist mare 200 | 1982 | piano
primo |
arred | / | p.auto | si |
Cecina Mare |
180+20 |
BOCCACAB | ||||
| Rendita | 395,09 | giardino | mq.20 | garage | / | |||||||||||||||||||||
| SPESE ATTO NOTARILE | balconi | mq.5 | cantina ripost taverna | / | ||||||||||||||||||||||
| 1a casa
2a casa |
2900 6600 |
|||||||||||||||||||||||||
| IMU2acasa | 703 | |||||||||||||||||||||||||
|
chiave 255 |
![]() |
![]() |
vedi altre foto |
3 VANI
al piano 1 a 250 mt mare e 50 mt dalla pineta, posto auto + grande terrazza pranzo |
G 177 |
CATEGORIA | A2 | 11.03.25 |
esclu siva |
appart | mq.55 | dist mare 250 | 1980 | piano primo | arred | p.auto | si |
Cecina Mare |
vendita sospesa | BULLFERR | ||||||
| Rendita | 546 | giardino | mq.0 | garage | / | |||||||||||||||||||||
| SPESE ATTO NOTARILE | terrazza | mq.30 | cantina ripost taverna | / | ||||||||||||||||||||||
| 1a casa
2a casa |
3500 8500 |
|||||||||||||||||||||||||
| IMU2acasa | 972/anno | |||||||||||||||||||||||||
|
chiave 251 |
![]() |
|
vedi altre foto |
3 VANI
ind al piano 1 a 650 mt mare, posto auto + GARAGE ed ampio giardino e terrazza pranzo |
G 177 |
CATEGORIA | A2 | 11.01.25 |
esclu siva |
indip | appart | mq.60 | dist mare 650 | 1980 | piano primo | arred | clima | p.auto | si |
Cecina Mare |
249 | BENCLIV | ||||
| Rendita | 552,49 | giardino | mq.50 | garage | si | |||||||||||||||||||||
| SPESE ATTO NOTARILE | terrazza | mq.10 | cantina ripost taverna | si | ||||||||||||||||||||||
| 1a casa
2a casa |
3500 8500 |
|||||||||||||||||||||||||
| IMU2acasa | 982/anno | |||||||||||||||||||||||||
|
chiave 245 |
![]() |
|
vedi altre foto |
3 VANI
giardino a 550 mt mare, posto auto e casetta magazzino |
G 177 |
CATEGORIA | A2 | 03.06.24 |
esclu siva |
indip | appart | mq.60 | dist mare 550 | 2000 | piano primo | arred | termo | p.auto | si |
Cecina Mare |
249 | SIGNGIN | ||||
| Rendita | 582,31 | giardino | mq.50 | garage | si | |||||||||||||||||||||
| SPESE ATTO NOTARILE | terrazza | mq.0 | cantina ripost taverna | si | ||||||||||||||||||||||
| 1a casa
2a casa |
3500 8600 |
|||||||||||||||||||||||||
| IMU2acasa | 1036/anno | |||||||||||||||||||||||||
|
chiave 242
|
![]() ![]() |
|
vedi altre foto
|
6 VANI
indipend. con giardino e p.auto |
G 175 |
CATEGORIA | A2 | 26.03.24 | co esclu siva | indip | appart | mq.115 | dist mare 350 | 1990 | piano terra | arred | clima | p.auto | si |
Mazzanta Mare Buca del Gatto |
IN TRATTATIVA |
CATEASTR | ||||
| Rendita | giardino | mq.120 | garage | / | ||||||||||||||||||||||
| SPESE ATTO NOTARILE | terrazza | mq.8 | cantina ripost taverna | |||||||||||||||||||||||
| 1a casa
2a casa |
3500 8100 |
|||||||||||||||||||||||||
| IMU2acasa | 910/ anno | |||||||||||||||||||||||||
|
chiave 242
|
![]() ![]() |
|
vedi altre foto |
3 VANI
indipend. con giardino e p.auto |
G 175 |
CATEGORIA | A2 | 26.03.24 | co esclu siva | indip | appart | mq.55 | dist mare 350 | 1990 | piano terra | arred | clima | p.auto | si |
Mazzanta Mare Buca del Gatto |
IN TRATTATIVA |
CATEASTR | ||||
| Rendita | giardino | mq.100 | garage | / | ||||||||||||||||||||||
| SPESE ATTO NOTARILE | terrazza | mq.8 | cantina ripost taverna | |||||||||||||||||||||||
| 1a casa
2a casa |
3500 8100 |
|||||||||||||||||||||||||
| IMU2acasa | 910/ anno | |||||||||||||||||||||||||
|
chiave 242 |
![]() |
|
vedi altre foto
|
3 VANI
indipend. con giardino e portico |
G 175 |
CATEGORIA | A2 | 26.03.24 | co esclu siva | indip | appart | mq.75 | dist mare 350 | 1990 | piano terra | arred | clima | p.auto | si |
Mazzanta Mare Buca del Gatto |
IN TRATTATIVA |
CATEASTR | ||||
| Rendita | giardino | mq.50 | garage | / | ||||||||||||||||||||||
| SPESE ATTO NOTARILE | terrazza | mq.8 | cantina ripost taverna | si | ||||||||||||||||||||||
| 1a casa
2a casa |
3500 8100 |
|||||||||||||||||||||||||
| IMU2acasa | 910/ anno | |||||||||||||||||||||||||
|
chiave
|
![]() |
|
vedi altre foto |
NUDA PROPRIETA' 3 VANI sul lungomare con ampia terrazza chiusa da vetrata |
G |
CATEGORIA | A2 | 15.04.23 | esclu
siva |
indip in 2 |
appart | mq.50 | dist mare 50 | 1999 | piano primo | arred | termo auton metano aria cond |
p.auto | / |
Cecina Mare NUDA PROPRIETA' (venditrice nata 1941) |
155 nuda proprietà |
BIENTVITT | ||||
| Rendita | 392,51 | giardino | mq.0 | garage | / | |||||||||||||||||||||
| SPESE ATTO NOTARILE | terrazza | mq.10 | cantina ripost taverna | si | ||||||||||||||||||||||
| 1a casa
2a casa |
3100 5500 |
|||||||||||||||||||||||||
| IMU2acasa | 699/ anno | |||||||||||||||||||||||||
|
chiave 208 |
![]() |
|
vedi altre foto |
3
VANI con ampio terrazzo e taverna monolocale |
G 175 |
CATEGORIA | A2 | 05.05.21 | esclu
siva |
3 | appart | mq.70 | dist mare 4000 | 1990 | p.2 | termo aut | p.auto | / |
Cecina centro zona Coop |
245 | ESPMONT | |||||
| Rendita | 583,19 | giardino | garage | si | ||||||||||||||||||||||
| SPESE ATTO NOTARILE | balconi | mq.10 | cantina ripost taverna | si | ||||||||||||||||||||||
| 1a casa
2a casa |
3600 8800 |
|||||||||||||||||||||||||
| IMU2acasa | 1038 / anno | |||||||||||||||||||||||||
|
4 VANI, 5 VANI e VILLE
al mare RENT TO BUY SCEGLI IL MIGLIOR MUTUO MUTUI: decreto Bersani CATEGORIE CATASTALI FOTOGALLERY PREVENTIVO CONDIZIONATORI Si invita chiunque a desistere nel copiare qualsiasi minimo materiale contenuto in questo sito, a norma di legge. |
||||||||||||||||||||||||||
| n. chiave | planimetria | foto e descrizione |
vedi altre foto
|
N. vani |
Classe APE IPE kwh/m2a |
Categoria | A + C | data inseri mento | esclu siva | entrata | appart | mq. | dist mare metri |
anno costr o ristr |
piano | arreda mento | termo | p.auto | ubica zione |
prezzo |
riferim | |||||
| Rendita | CATASTO | giardino | mq. | garage | ||||||||||||||||||||||
| SPESE ATTO NOTARILE | ||||||||||||||||||||||||||
|
1a casa 2%
2a casa 9% |
Registro (2% e 9%) +Notaio, +Tecnico (escluso agenzia) |
balconi |
mq. | cantina ripost taverna | ||||||||||||||||||||||
| IMU2acasa | IMU | |||||||||||||||||||||||||
|
chiave 260 |
![]() |
![]() |
vedi altre foto |
Ampio 4 VANI ristrutturato ed arredato a nuovo a 300mt dal mare |
G 175 |
CATEGORIA | A2 | 16.04.25 |
escl |
indip in due |
appart | mq.92 | dist mare 300 | 2024 | p.2° | arred | clima | p.auto | / | Cecina Mare |
349 tratt |
BULLMONT | ||||
| Rendita | giardino | mq. / | garage | / | ||||||||||||||||||||||
| SPESE ATTO NOTARILE | balcone | mq.4 | cantina ripost taverna | si | ||||||||||||||||||||||
| 1a casa 2a casa |
||||||||||||||||||||||||||
| IMU2acasa | ||||||||||||||||||||||||||
|
chiave 253 |
![]() |
![]() |
vedi altre foto |
4 VANI a
SCHIERA su due piani più GARAGE. taverna e p.auto |
E 175 |
CATEGORIA | A2 | 06.03.25 |
escl |
indip | appart | mq.70 | dist mare 690 | 1990 | p.terra
rialz e 1° |
arred. |
termo aut metano |
p.auto | si | Cecina Mare |
329 tratt |
SIMOREP | ||||
| Rendita | 799,47 | giardino | mq.50 | garage | si | |||||||||||||||||||||
| SPESE ATTO NOTARILE | terrazza | mq.9 | cantina ripost taverna | si | ||||||||||||||||||||||
| 1a casa 2a casa |
3900 10900 |
|||||||||||||||||||||||||
| IMU2acasa | 1422 / anno | |||||||||||||||||||||||||
|
chiave 246 |
![]() |
|
vedi altre foto |
Ampio 4 VANI con GARAGE |
G 175 |
CATEGORIA | A2 | 16.08.24 |
escl |
indip | appart | mq.85 | dist mare 100 | 1970 | p.2° | arred | p.auto | si | Cecina Mare | 259 | BOSGHPIG | |||||
| Rendita | 392,51 | giardino | mq. / | garage | si | |||||||||||||||||||||
| SPESE ATTO NOTARILE | balcone | mq.4 | cantina ripost taverna | si | ||||||||||||||||||||||
| 1a casa 2a casa |
3200 8500 |
|||||||||||||||||||||||||
| IMU2acasa | 698 / anno | |||||||||||||||||||||||||
|
chiave 205 |
![]() |
|
vedi altre foto |
4 vani ind con piccola corte |
G |
CATEGORIA | A2 | 10.07.21 | escl | indip | appart | mq.80 | dist mare 500 | 2003 | p.semin terrato |
arred |
termo aut. aria cond |
p.auto | / | Cecina Mare |
195 |
BENETEV | ||||
| Rendita | 511,29 | giardino | mq.10 | garage | / | |||||||||||||||||||||
|
1a casa 2a casa |
3200 8000 |
terrazza | mq.0 | cantina ripost taverna | si | |||||||||||||||||||||
| IMU2acasa | 910 | |||||||||||||||||||||||||
|
chiave |
![]() |
![]() |
vedi altre foto |
VILLETTA da ultimare 5 vani doppi serv due portici, grande serra solare e 850 mq giardino ONERI PAGATI |
E 175 |
CATEGORIA | A2 | 03.03.22 |
escl |
indip | appart | mq.115 | dist mare 1500 | 2021 | p.terra
e soppalco |
termo aut | p.auto | si | Cecina Mare | IN TRATTATIVA | MANUCINQ | |||||
| Rendita | giardino | mq.850 | garage | / | ||||||||||||||||||||||
| 1a casa | terrazza | mq.22 | cantina ripost taverna | si | ||||||||||||||||||||||
| 2a casa | ||||||||||||||||||||||||||
| IMU2acasa | ||||||||||||||||||||||||||
|
chiave 213 |
![]() |
|
vedi altre foto |
VILLETTA
di due quadrilocali doppio giardino sul mare |
E 175 |
CATEGORIA | A2 | 24.11.21 |
escl |
indip | appart | mq.90 | dist mare 50 | 1985 | p.terra
e 1° |
arred | termo aut | p.auto | / | Cecina Mare | VENDITA SOSPESA | RICCAIR | ||||
| Rendita | 1306,63 | giardino | mq.80 | garage | / | |||||||||||||||||||||
| 1a casa | 5500 | terrazza | mq.5 | cantina ripost taverna | si | |||||||||||||||||||||
| 2a casa | 17500 | |||||||||||||||||||||||||
| IMU2acasa | 2326 | |||||||||||||||||||||||||
|
chiave 213 |
![]() |
vedi altre foto |
ampio 4 vani con doppio giardino sul mare |
E 175 |
CATEGORIA | A2 | 24.11.21 |
escl |
indip | appart | mq.90 | dist mare 50 | 1985 | p.terra | arred | termo aut | p.auto | / | Cecina Mare | VENDITA SOSPESA | RICCAIR | |||||
| Rendita | 681,72 | giardino | mq.80 | garage | / | |||||||||||||||||||||
| 1a casa | 3900 | terrazza | mq.5 | cantina ripost taverna | si | |||||||||||||||||||||
| 2a casa | 10500 | |||||||||||||||||||||||||
| IMU2acasa | 1213 | |||||||||||||||||||||||||
|
chiave 213 |
![]() |
vedi altre foto |
ampio 4 vani con balcone vista mare piccola corte sul mare |
E 175 |
CATEGORIA | A2 | 24.11.21 |
escl |
indip | appart | mq.90 | dist mare 50 | 1985 | p.primo | arred | termo aut | p.auto | / | Cecina Mare | VENDITA SOSPESA | RICCAIR | |||||
| Rendita | 624,91 | giardino | mq.10 | garage | / | |||||||||||||||||||||
| 1a casa
2a casa |
3800 9400 |
terrazza | mq.5 | cantina ripost taverna | si | |||||||||||||||||||||
| IMU2acasa | 1112 | |||||||||||||||||||||||||
| FONDI COMMERCIALI e NEGOZI | ||||||||||||||||||||||||||
| chiave | 3 VANI |
G |
C1 | 1a casa | 02.06.14 | indip | dist mare 50 | p.t | p.auto |
Cecina Mare |
150 | LLAGBOR
|
||||||||||||||
| 2a casa | garage | |||||||||||||||||||||||||
| cantina ripost taverna | ||||||||||||||||||||||||||
|
CECINA CITTA' RENT TO BUY SCEGLI IL MIGLIOR MUTUO MUTUI: decreto Bersani CATEGORIE CATASTALI FOTOGALLERY PREVENTIVO INSTALLAZIONE CONDIZIONATORI Si invita chiunque a desistere nel copiare qualsiasi minimo materiale contenuto in questo sito, a norma di legge. |
||||||||||||||||||||||||||
| n. chiave | planimetria | foto e descrizione |
vedi altre foto
|
N. vani |
Classe APE IPE kwh/m2a |
Categoria | A + C | data inseri mento | esclu siva | entrata | appart | mq. | dist mare metri |
anno costr o ristr |
piano | arreda mento | termo | p.auto | ubica zione |
prezzo rialzo ribasso |
riferim | |||||
| Rendita | CATASTO | giardino | mq. | garage | ||||||||||||||||||||||
| SPESE ATTO NOTARILE | ||||||||||||||||||||||||||
|
1a casa 2%
2a casa 9% |
Registro 2% e 9% +Notaio, +Tecnico (escluso agenzia) |
balconi |
mq. | cantina ripost taverna | ||||||||||||||||||||||
| IMU2acasa | IMU | |||||||||||||||||||||||||
|
chiave 00 |
![]() |
![]() |
vedi altre foto |
4 VANI con giardino esclusivo terrazzo, taverna, garage |
G 175 |
CATEGORIA | A2 | 05.12.25 | escl | indip | appart | mq.90 | dist mare 4000 | 1990 | p. rialzato |
/ | termo aut | p.auto | si |
Cecina centro zona Ladronaia |
319 | BERTSIG | ||||
| Rendita | giardino | 100 | garage | si | ||||||||||||||||||||||
|
1a casa
2a casa IMU2acasa |
balconi | mq.15 | cantina ripost taverna | si | ||||||||||||||||||||||
|
chiave 00 |
![]() |
|
vedi altre foto |
5 VANI con corte esclusiva veranda chiusa e terrazzo, taverna, garage |
G 175 |
CATEGORIA | A2 | 05.02.25 | escl | indip | appart | mq.140 compresa taverna e garage | dist mare 4000 | 1985 | p. rialzato |
arred | termo aut | p.auto | si |
Cecina centro zona Coop |
IN TRATTATIVA | MICHEBROD | ||||
| Rendita | giardino | 80 | garage | si | ||||||||||||||||||||||
|
1a casa
2a casa IMU2acasa |
balconi | mq.15 | cantina ripost taverna | si | ||||||||||||||||||||||
|
252 |
GRANMONT | |||||||||||||||||||||||||
|
chiave 245 |
![]() |
![]() |
vedi altre foto |
3 VANI con ampio terrazzo ripost bici |
G 175 |
CATEGORIA | A2 | 05.02.24 | escl | condom | appart | mq.55 | dist mare 4000 | 1990 | p.4 | termo aut | p.auto | / |
Cecina centro zona Coop |
129 tratt |
DEMBRO | |||||
| Rendita | 583,19 | giardino | garage | / | ||||||||||||||||||||||
| 1a casa
2a casa IMU2acasa |
3500 8700 1038 |
balconi | mq.10 | cantina ripost taverna | si | |||||||||||||||||||||
|
chiave 160 |
![]() |
![]() |
vedi altre foto |
VILLA di 12 stanze, grande terrazza e corte 1000 mq circostante disponibile fino a 7 ha |
G 175 |
CATEGORIA | A2 | 02.08.22 | escl | indip | appart | mq.300 | dist mare 3500 | 1979 | p.terra e primo | termo aut | p.auto | si |
Cecina Palazzi |
SOSPESa IN TRATTATIVA |
EREDPIS | |||||
| Rendita | 1653 | giardino | mq.1000 fino 70.000 | garage | / | |||||||||||||||||||||
| 1a casa
2a casa IMU2acasa |
terrazza | mq.50 | cantina ripost taverna | si | ||||||||||||||||||||||
|
chiave
|
![]() |
vedi altre foto |
4
VANI con ampio terrazzo garage, taverna e giardino |
G 175 |
CATEGORIA | A2 | 12.09.21 | escl | indip | appart | mq.100 | dist mare 3500 | 1990 | p.1 ed ultimo | arred | termo aut | p.auto | si |
Cecina centro |
SOSPESO | BIENDONI | |||||
| Rendita | 819 | giardino | mq.40 | garage | si | |||||||||||||||||||||
| 1a casa
2a casa IMU2acasa |
4200 11500 1458 |
taverna +garage balconi |
mq 45 mq.15 |
cantina ripost taverna | si | |||||||||||||||||||||
|
chiave 208 |
![]() |
|
vedi altre foto |
4
VANI con ampio terrazzo e taverna monolocale |
G 175 |
CATEGORIA | A2 | 05.05.21 | escl | 3 | appart | mq.70 | dist mare 4000 | 1990 | p.2 | termo aut | p.auto | / |
Cecina centro zona Coop |
245 | ESPMONT | |||||
| Rendita | 583,19 | giardino | garage | si | ||||||||||||||||||||||
| 1a casa
2a casa IMU2acasa |
3500 8700 1038 |
balconi | mq.10 | cantina ripost taverna | si | |||||||||||||||||||||
|
PAESI LIMITROFI e LONTANI SPESE CONTRATTUALI RENT TO BUY SCEGLI IL MIGLIOR MUTUO MUTUI: decreto Bersani CATEGORIE CATASTALI FOTOGALLERY PREVENTIVO INSTALLAZIONE CONDIZIONATORI Si invita chiunque a desistere nel copiare qualsiasi minimo materiale contenuto in questo sito, a norma di legge. |
||||||||||||||||||||||
| n. chiave | planimetria | foto e descrizione |
vedi altre foto
|
N. vani | ClasseAPE IPE kwh/m2a | Categoria | A + C | data inseri mento | esclu siva | entrata | appart | mq. | dist mare metri |
anno costr o ristr |
piano | arreda mento | termo | p.auto | ubica zione |
prezzo rialzo ribasso |
riferim | |
| Rendita | CATASTO | giardino | mq. | garage | ||||||||||||||||||
| SPESE ATTO NOTARILE | ||||||||||||||||||||||
|
1a casa 2%
2a casa 9% |
Registro 2% e 9% +Notaio, +Tecnico (escluso agenzia) |
balconi |
mq. | cantina ripost taverna | ||||||||||||||||||
| IMU2acasa | IMU | |||||||||||||||||||||
PREVENTIVO INSTALLAZIONE CONDIZIONATORI
|
CAMPAGNA
RENT TO BUY SCEGLI IL MIGLIOR MUTUO MUTUI: decreto Bersani CATEGORIE CATASTALI FOTOGALLERY PREVENTIVO INSTALLAZIONE CONDIZIONATORI Si invita chiunque a desistere nel copiare qualsiasi minimo materiale contenuto in questo sito, a norma di legge. |
||||||||||||||||||||||
| n. chiave | planimetria | foto e descrizione |
vedi altre foto
|
N. vani |
Classe APE IPE kwh/m2a |
Categoria | A + C | data inseri mento | esclu siva | entrata | appart | mq. | dist mare metri |
anno costr o ristr |
piano | arreda mento | termo | p.auto | ubica zione |
prezzo ribasso rialzo |
riferim | |
| Rendita | CATASTO | giardino | mq. | garage | ||||||||||||||||||
| SPESE ATTO NOTARILE | ||||||||||||||||||||||
|
1a casa 2% 2a casa 9% |
Registro 2% e 9% +Notaio, +Tecnico (escluso agenzia) |
balconi |
mq. | cantina ripost taverna | ||||||||||||||||||
| IMU2acasa | IMU | |||||||||||||||||||||
|
chiave 0 |
![]() |
|
vedi altre foto |
ANNESSO di circa 20mq oltre a mansarda con due camere e bagno. Terreno annesso |
|
CATEGORIA | C2 | 02.02.25 | ind | appart | mq.20 | dist mare 3500 | 2019 | p.terra e primo | si | termo aut | p.auto | si |
Bibbona La California |
250 tratt |
LAPORBIBB | |
| Rendita | giardino | mq.1000 | garage | / | ||||||||||||||||||
|
1a casa 2a casa IMU2acasa |
terrazza | mq.40 | cantina ripost taverna | / | ||||||||||||||||||
|
chiave 160 |
![]() |
![]() |
vedi altre foto |
VILLA di 12 stanze, grande terrazza e corte circostante da 1000mq a 7ha |
G 175 |
CATEGORIA | A2 | 02.08.22 | appart | mq.250 | dist mare 3500 | 1999 | p.terra e primo | termo aut | p.auto | si |
Cecina Palazzi |
IN TRATTATIVA | EREDPIS | |||
| Rendita | 1653 | giardino | mq.1000 fin 70.000 |
garage | / | |||||||||||||||||
|
1a casa 2a casa IMU2acasa |
terrazza | mq.50 | cantina ripost taverna | si | ||||||||||||||||||
PREVENTIVO INSTALLAZIONE CONDIZIONATORI
|
LOCALI e ATTIVITA' COMMERCIALI SPESE CONTRATTUALI RENT TO BUY SCEGLI IL MIGLIOR MUTUO MUTUI: decreto Bersani CATEGORIE CATASTALI FOTOGALLERY
Si invita chiunque a desistere nel copiare qualsiasi minimo
materiale contenuto in questo sito, a norma di legge. |
| chiave | Attività ORTOFRUTTA | ATTREZZATURA completa banchi bilance e ombrelloni, anche CAMION negozio. | 02.09.25 | con 5 mercati settimanali Cecina e dintorni. | Incassi dimostrabili |
Cecina e dintorni |
TRATTATIVA in AGENZIA | DAUCALIF |
| chiave | FONDO COMMERC. |
3 VANI |
|
C1 | 02.06.21 | dist mare 50 | p.terra |
Cecina Mare |
150 | GALLROB | |||||||||
| chiave |
![]() |
FONDO COMMERC. |
1 VANO |
G |
C1 | 25.10.22 | MQ.65 | dist mare 250 | p.terra |
Mazzanta Mare |
110 | LLAGBOR | |||||||
PREVENTIVO INSTALLAZIONE CONDIZIONATORI
|
e.mail: agenzialariviera@yahoo.it
e.mail : agenzialariviera@yahoo.it
oppure rivolgersi ai seguenti:
tel
0586 620020 - tel e
fax 0586 622792 cell. 335 6162467 - 334.8013773
|