
VENDESI
MARINA di CECINA 250 m dal mare zona tranquilla
TRILOCALE, al piano primo di palazzina, ben tenuto e ben arredato, composto da ampio soggiorno pranzo con angolo cottura, camera matrimoniale, cameretta e bagno con doccia.
BILOCALE, al piano primo di palazzina, ben tenuto e ben arredato, composto da ampio soggiorno pranzo con angolo cottura, camera matrimoniale, bagno con doccia.
Classe Energetica: G Indice Prestazione Energetica (IPE): 175 kw/m2a
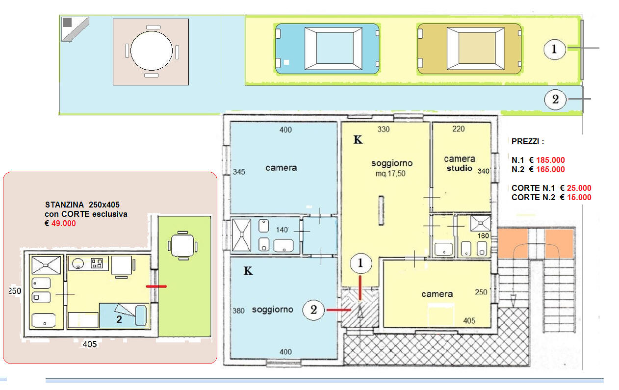
€ 185.000 trilo + 165.000 bilo
+ 49.000 stanzina + 25.000 due posti auto + 15.000 corte per gazebo


BILOCALE in coloritura celeste 165.000 + 15.000 corte per gazebo - TRILOCALE in coloritura gialla 185.000 + 25.000 2posti auto
Di seguito le FOTO del TRILOCALE
|
|
|
|
|
|
|
|
|
|
|
|
|
|