
VENDESI
MARINA di CECINA 250 m dal mare zona tranquilla
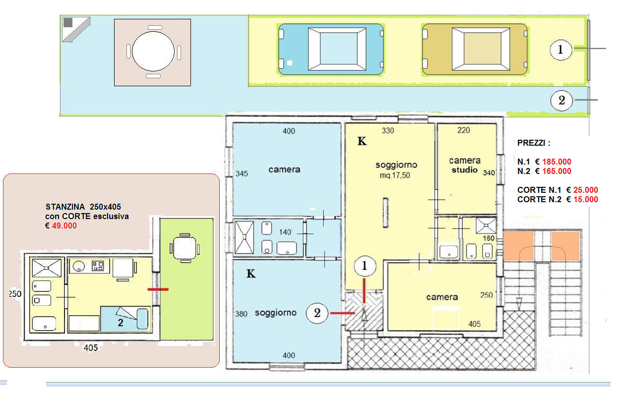
BILOCALE, al piano primo di palazzina, ben tenuto e ben arredato, composto da soggiorno pranzo con angolo cottura, camera matrimoniale e bagno con doccia.
TRILOCALE, al piano primo di palazzina, ben tenuto e ben arredato, composto da soggiorno pranzo con angolo cottura, camera matrimoniale, camera studio e bagno con doccia.
€ 185.000 trilo + 165.000 bilo + 49.000 stanzina
+ 25.000 2 posti auto + 15.000 corte x gazebo
Classe Energetica: G Indice Prestazione Energetica (IPE): 175 kw/m2a

BILOCALE in coloritura celeste 165.000 - TRILOCALE in coloritura gialla 185.000

ALTRA SOLUZIONE:

Di seguito le FOTO del BILOCALE
|
|
|
|
|
|
|
|